Администрация г. Перми и Пермского края
ПАО "Урал-Калий"
Наша компания специализируется на следующих видах работ:
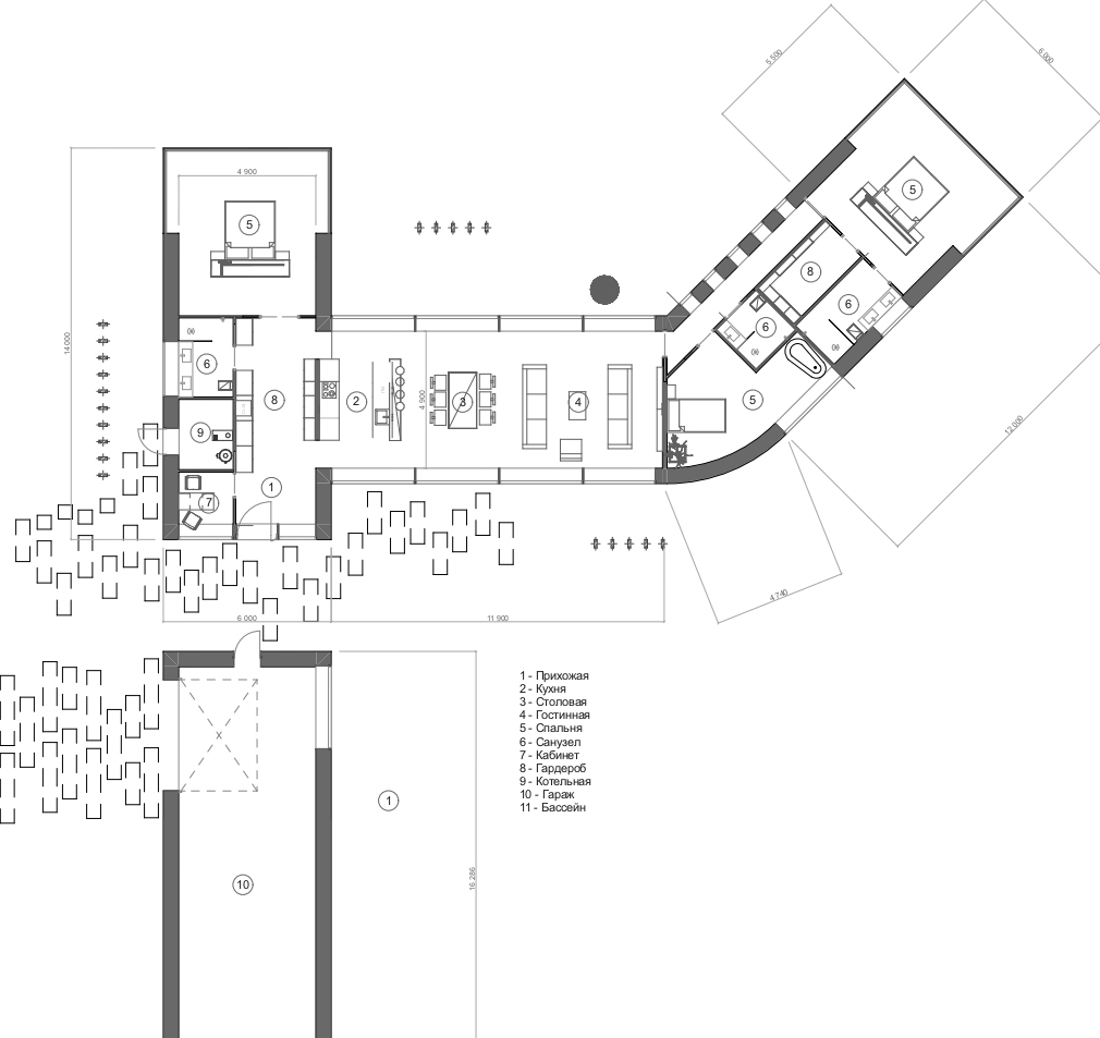
Архитектура, дизайн, разработка планировки помещений жилых домов, технадзор строительства объектов, обследование технического состояния зданий и сооружений (промышленные, общественные, жилые объекты),проектирование ИЖС, реконструкция, перепланировка, осмотр домов, консультирование и осмотр (техническая проверка) при покупке недвижимости.
Работаем без выходных (с 8:00 до 22:00).
Опыт работы в строительстве: с 2002 года.
Все специалисты имеют соответствующую квалификацию.
1. Работа по договору (цена не меняется в течение всего договора).
2. Возможно консультирование по видео связи.
3. Опционально возможно сопровождение проектов (авторский надзор, технадзор отдельных этапов строительства).

Архитектурное проектирование, разработка дизайна, реконструкция, планировка помещений.
Сроки создания полноценного проекта в среднем 15-90 дней.
Ориентировочная стоимость проектирования здания: 500-1000 руб./м2 площади.

Технический надзор, авторский надзор, консультирование на всех этапах строительства.
Средняя стоимость одного этапа технадзора: 5-10 тысяч рублей.
Возможно консультирование по видео связи.

Обследование технического состояния зданий и сооружений (промышленные, общественные, жилые объекты).
Ориентировочная стоимость комплексного обследования здания: 100-300 руб./м2 площади.

Осмотр строений на предмет выявления несоответствия НТД, консультирование при покупке недвижимости.
Начальняя цена осмотра (консультации): от 1000 рублей.